Halcyon 01

Starting at $228,000 CDN plus tax $162,000 USD (exchange rate dependent) | Delivers to the US and beyond

The Halcyon 01.

Size: 28’L x 8’6"W x 13’6"H

This is our original and first model. The pioneer model that has already been delivered to incredible people around North America. We spent countless hours perfecting this luxury tiny home to make sure it was the right foundation to build our models from.

Book now, limited availability in 2025:

Book a Call
 

See what it’s all about!

Watch the walkthrough video with Kevin Fritz below.

 
 

Price starts at $228,000 CDN* plus tax / $159,000USD* (exchange rate dependent)
email
info@fritztinyhomes.com to start the process

*Due to fluctuating commodity costs, base price is subject to change

 

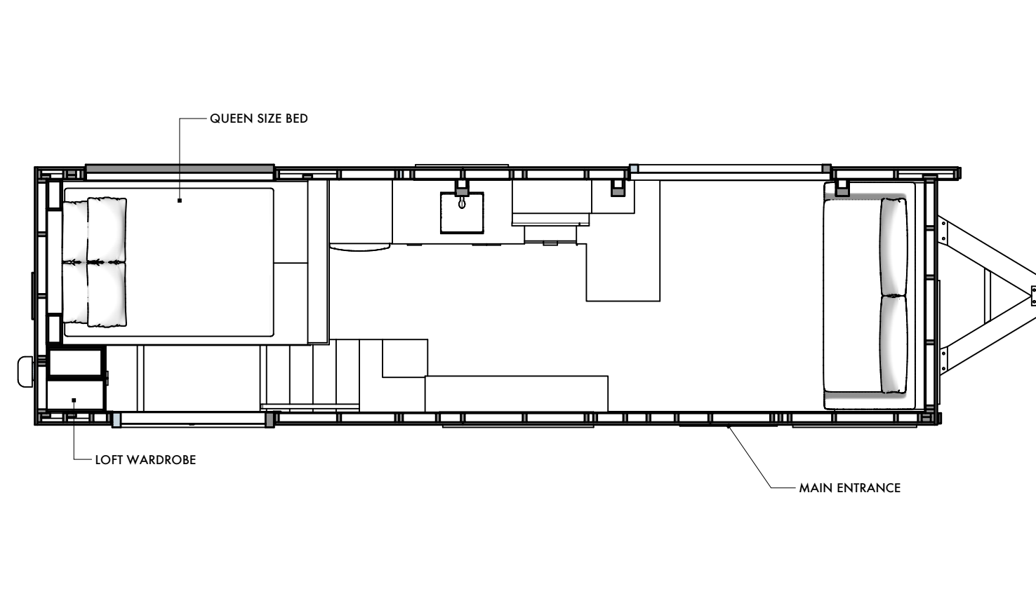
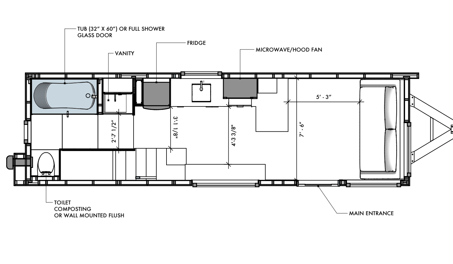
Key features include:

  • This tiny home is a certified RV: CSA Z240 RV for Canada & NFPA1192 RV for USA

  • 8 fibreglass windows and a full glass door

  • Spacious living room with a couch

  • Feature storage hutch with front hall closet

  • Full kitchen packed with storage solutions and custom concrete countertops

  • Luxurious bathroom with a soaker tub

  • Washer-dryer combo and laundry storage

  • Standing loft bedroom with 2 windows, full wardrobe, integrated storage, and lighting in the headboard hardwood

  • Custom concrete tile and hardwood throughout

    Timber work with dimmable flush mount LED lighting

  • Custom cabinetry and millwork

  • IBC Combination boiler for radiant in-floor heat and hot water on demand

  • ERV (Energy Recovery Ventilation) for healthy air exchange

  • Metal siding for a maintenance-free exterior

  • Wood-framed construction with spray foam insulation and ZIP and ZIP-R system for an efficient building envelope

  • Custom-built foundation by Fritz Tiny Homes

 

Here are some of our available additions and options:

  • Insulated or non-insulated skirting

  • Blinds

  • Mattress

  • Set up requirements: blocking kit and hook-up kits

  • Solar system and fully off-grid package

  • Airconditioning through a mini-split

  • Full glass window in the living room (the home comes standard with 2 4'x6' windows)

  • Changing the couch to a sleeper sofa or trundle bed

  • Dishwasher

  • Adding a full walk-in shower instead of a soaker tub

See The Halcyon Variations

Next
Next

Halcyon 02